Вход
Восстановление пароля
Введите код из SMS
Введите новый пароль
8 (812) 777-27-27

Добавить лот

Чтобы реализовать свою недвижимость на площадке Фонда Имущества, отправьте нам информацию об объекте:

{{smsCtrl.telMsg}}
{{smsCtrl.codeMsg}}
Отправить еще раз
Добавляя лот, вы соглашаетесь с Договором оферты

Авторизация
Авторизируйтесь для добавления объекта и участия в рейтинге

Зарегистрироваться

Оцените по достоинству личный кабинет на сайте Фонда Имущества
Вы можете зарегистрироваться
чтобы воспользоваться новым функционалом
О сайте

Название: сетевое издание «фондимущества.рф»

Учредитель: АО «Фонд Имущества Санкт-Петербурга»

Главный редактор: Голыгина А.В.

Электронная почта: pochta@property-fund.ru

Телефон: +7 (812) 426-11-11

Свидетельство о регистрации: ЭЛ № ФС 77 - 73029

Номер лота 4193
Объект нежилого фонда (помещение) Извещение о проведении торгов
21 января
2026
11:00
среда

Адрес: Санкт-Петербург г, 2-я В.О. линия, дом 35, литер Б

Район: Василеостровский    Василеостровская

Форма проведения:
Аукцион с открытой формой подачи предложений

Место проведения торгов:
Электронная площадка АО «Российский аукционный дом» (раздел «Приватизация») - www.lot-online.ru

Организатор торгов:
АО «Российский аукционный дом»

Сведения о процедуре
Начальная цена 7 320 000 руб.
Размер задатка 732 000 руб.
Шаг аукциона 366 000 руб.
Цена продажи 4 758 000 руб.
Определение участников торгов 19.01.2025 15:00
Тип сделки Продажа
Тип торгов Электронные
Дата начала приема заявок 09.12.25, 10:00
Дата окончания приема заявок 13.01.25, 23:00
Срок поступления задатка 13.01.25
Дата торгов 21.01.26
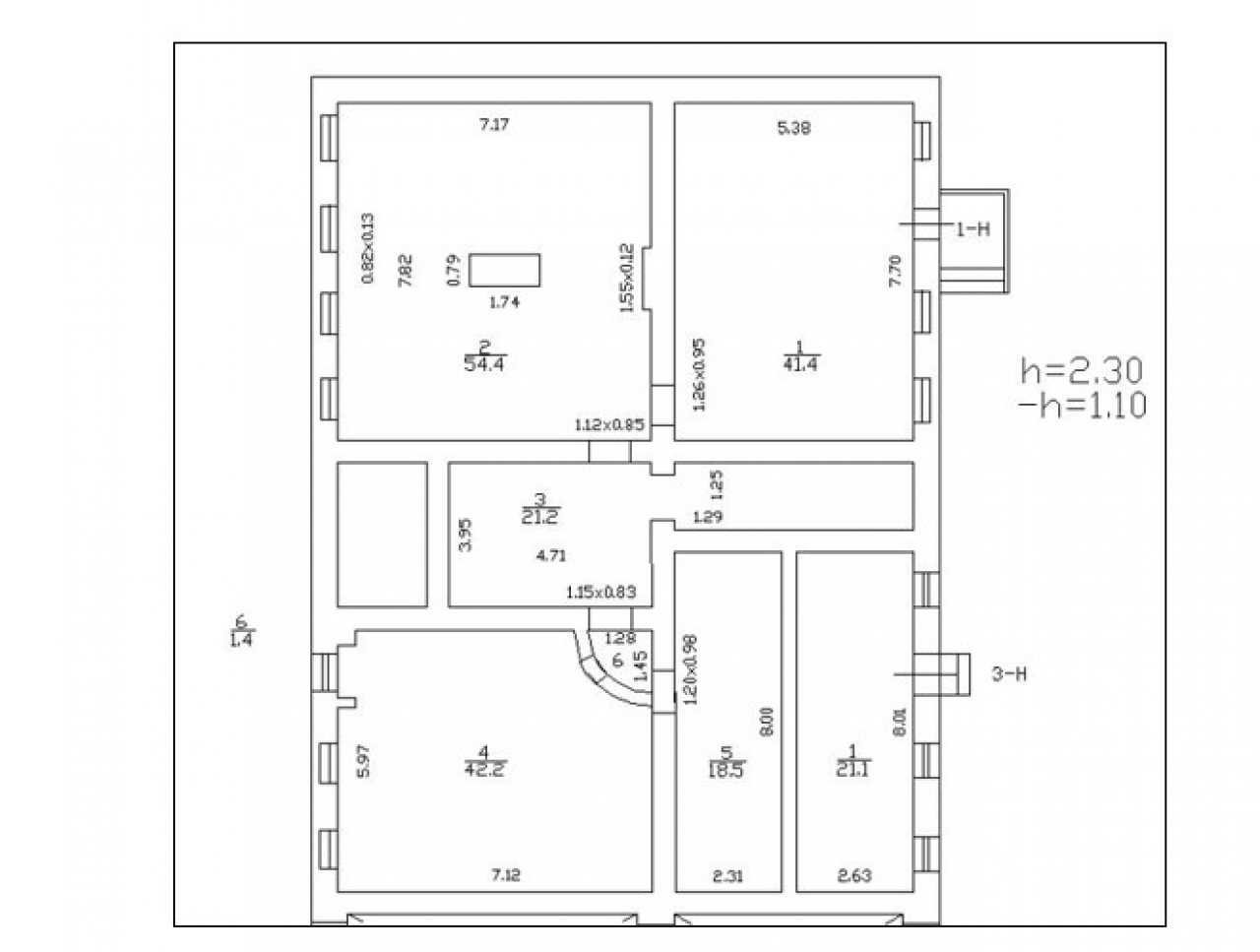
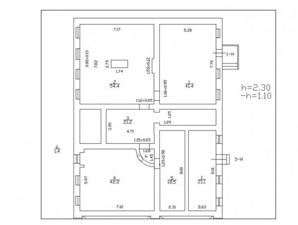
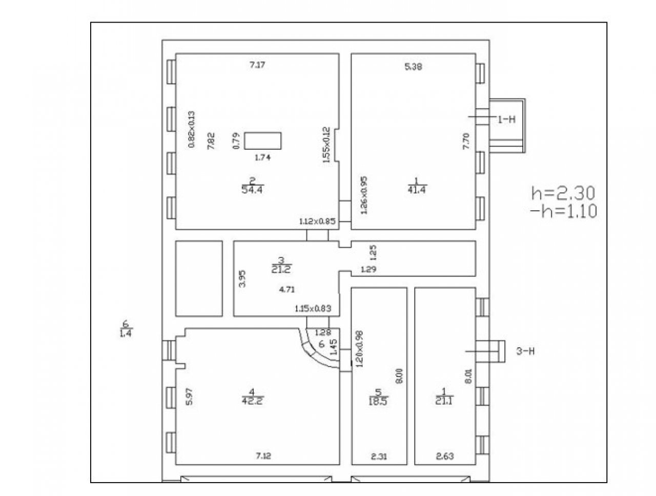
Сведения об объекте
Адрес Санкт-Петербург г, 2-я В.О. линия, дом 35, литер Б
Помещение 1-Н
Кадастровый номер 78:06:0002017:3554
Функциональное назначение Складское
Площадь кв. м 179,1 м2
Этаж расположения подвал
Тип входа отдельный со двора
Элементы благоустройства Есть
Еще 2 фото
Василеостровская
Объект нежилого фонда (помещение) Санкт-Петербург г, 6-я В.О. линия, дом 23, литер Б Показать на карте

Площадь: 5.6м2

Район: Василеостровский

Начальная цена: 854 000 руб.

Еще 9 фото
Приморская
Объект нежилого фонда (помещение) Санкт-Петербург г, Наличная ул, дом 31, литер А Показать на карте

Площадь: 326.7м2

Район: Василеостровский

Дата торгов: 31.03.26

Начальная цена: 10 370 000 руб.

Еще 3 фото
Василеостровская
Объект нежилого фонда (помещение) Санкт-Петербург г, 6-я В.О. линия, дом 23, литер Б Показать на карте

Площадь: 5.6м2

Район: Василеостровский

Начальная цена: 854 000 руб.

Еще 4 фото
Василеостровская
Объект нежилого фонда (помещение) Санкт-Петербург г, 7-я В.О. линия, дом 8, литер Б Показать на карте

Площадь: 7.2м2

Район: Василеостровский

Начальная цена: 927 200 руб.

Прямоугольник 2 копия Прямоугольник 2 копия 2 chat chat Прямоугольник, скругл. углы 1 копия 6 profile