Вход
Восстановление пароля
Введите код из SMS
Введите новый пароль
8 (812) 777-27-27

Добавить лот

Чтобы реализовать свою недвижимость на площадке Фонда Имущества, отправьте нам информацию об объекте:

{{smsCtrl.telMsg}}
{{smsCtrl.codeMsg}}
Отправить еще раз
Добавляя лот, вы соглашаетесь с Договором оферты

Авторизация
Авторизируйтесь для добавления объекта и участия в рейтинге

Зарегистрироваться

Оцените по достоинству личный кабинет на сайте Фонда Имущества
Вы можете зарегистрироваться
чтобы воспользоваться новым функционалом
О сайте

Название: сетевое издание «фондимущества.рф»

Учредитель: АО «Фонд Имущества Санкт-Петербурга»

Главный редактор: Голыгина А.В.

Электронная почта: pochta@property-fund.ru

Телефон: +7 (812) 426-11-11

Свидетельство о регистрации: ЭЛ № ФС 77 - 73029

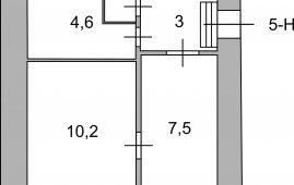
Номер лота 962
Нежилое помещение 121,6 кв.м. в Адмиралтейском районе, пер. Гривцова, д.5, лит. А Извещение о проведении торгов
21 мая
2020
11:30
четверг

Адрес: Санкт-Петербург г, Гривцова пер, дом 5, литер А

Район: Адмиралтейский    Сенная площадь

Форма проведения:
Аукцион с открытой формой подачи предложений

Место проведения торгов:
ЗАО «Сбербанк-АСТ» - utp.sberbank-ast.ru

Организатор торгов:
АО "Фонд имущества Санкт-Петербурга"

Сведения о процедуре
Начальная цена 15 200 000 руб.
Размер задатка 3 040 000 руб.
Шаг аукциона 152 000 руб.
Цена продажи 22 040 000 руб.
Определение участников торгов 20.05.2020 16:00
Тип сделки Продажа
Дата начала приема заявок 20.04.20, 17:00
Дата окончания приема заявок 19.05.20, 17:00
Срок поступления задатка 20.05.20
Дата торгов 21.05.20
Сведения об объекте
Адрес Санкт-Петербург г, Гривцова пер, дом 5, литер А
Помещение 45-Н
Кадастровый номер 78:32:0001292:157
Функциональное назначение Нежилое
Площадь кв. м 121,6 м2
Этаж расположения 1
Тип входа 1 отдельный с улицы, 1 отдельный со двора
Элементы благоустройства Есть
Примечания

Электронные торги на ЭТП ЗАО «Сбербанк-АСТ». Номер процедуры: SBR028-2004200016

Еще 10 фото
Балтийская
Нежилое помещение в аренду для субъектов малого и среднего предпринимательства в Санкт-Петербурге Санкт-Петербург г, Садовая ул, дом 105, литер А Показать на карте

Площадь: 16м2

Район: Адмиралтейский

Еще 3 фото
Технологический институт
Нежилое помещение в аренду для субъектов малого и среднего предпринимательства в Санкт-Петербурге Санкт-Петербург г, Верейская ул, дом 29, литер А Показать на карте

Площадь: 93.3м2

Район: Адмиралтейский

Дата торгов: 29.10.20

Начальная ставка: 680 633,16 руб.

Еще 12 фото
Садовая, Спасская, Сенная площадь
Нежилое помещение в аренду для субъектов малого и среднего предпринимательства в Санкт-Петербурге Санкт-Петербург г, Казанская ул, дом 33/5, литер А Показать на карте

Площадь: 203.5м2

Район: Адмиралтейский

Еще 5 фото
Адмиралтейская
Нежилое помещение в аренду для субъектов малого и среднего предпринимательства в Санкт-Петербурге Санкт-Петербург г, Галерная ул, дом 25, литер А Показать на карте

Площадь: 121.6м2

Район: Адмиралтейский

Начальная ставка: 417 711,60 руб.

Прямоугольник 2 копия Прямоугольник 2 копия 2 chat chat Прямоугольник, скругл. углы 1 копия 6 profile