Вход
Восстановление пароля
Введите код из SMS
Введите новый пароль
8 (812) 777-27-27

Добавить лот

Чтобы реализовать свою недвижимость на площадке Фонда Имущества, отправьте нам информацию об объекте:

{{smsCtrl.telMsg}}
{{smsCtrl.codeMsg}}
Отправить еще раз
Добавляя лот, вы соглашаетесь с Договором оферты

Авторизация
Авторизируйтесь для добавления объекта и участия в рейтинге

Зарегистрироваться

Оцените по достоинству личный кабинет на сайте Фонда Имущества
Вы можете зарегистрироваться
чтобы воспользоваться новым функционалом
О сайте

Название: сетевое издание «фондимущества.рф»

Учредитель: АО «Фонд Имущества Санкт-Петербурга»

Главный редактор: Голыгина А.В.

Электронная почта: pochta@property-fund.ru

Телефон: +7 (812) 426-11-11

Свидетельство о регистрации: ЭЛ № ФС 77 - 73029

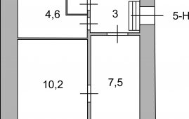
Номер лота 4619
Нежилое помещение в аренду Извещение о проведении торгов
09 июля
2025
12:00
среда

Адрес: Санкт-Петербург г, Большая Подьяческая ул, дом 1-3, литер А

Район: Адмиралтейский    Садовая

Форма проведения:
Аукцион с открытой формой подачи предложений

Место проведения торгов:
Универсальная торговая платформа АО «Сбербанк-АСТ» (торговая секция «Приватизация, аренда и продажа прав») - utp.sberbank-ast.ru

Организатор торгов:
АО «Фонд имущества Санкт-Петербурга»

Сведения о процедуре
Начальная цена 1 709 571,48 руб.
Размер задатка 854 785,74 руб.
Шаг аукциона 85 478,57 руб.
Цена продажи 1 709 571,48 руб.
Определение участников торгов 09.07.2025
Дата публикации 05.06.25
Тип сделки Аренда
Тип торгов Электронные
Дата начала приема заявок 06.06.25, 16:00
Дата окончания приема заявок 07.07.25, 10:00
Срок поступления задатка 07.07.25
Дата торгов 09.07.25
Сведения об объекте
Адрес Санкт-Петербург г, Большая Подьяческая ул, дом 1-3, литер А
Помещение 1-Н
Кадастровый номер 78:32:0001239:2301
Функциональное назначение Нежилое
Площадь кв. м 146,1 м2
Этаж расположения цокольный
Тип входа 1 отдельный со двора, 1 отдельный с улицы
Элементы благоустройства Есть
Примечания

Начальная цена - величина годовой арендной платы. Обременения: см. извещение о проведении торгов. Объект относится к числу объектов культурного наследия регионального значения «Дом купца Злобина». Обязанность арендатора по присоединению Объекта к электросетям. Самовольное переустройство/перепланировка. Лицо, с которым должен быть заключен договор аренды, обязано выплатить специализированной организации вознаграждение в размере месячной арендной платы за Объект, определенной по итогам аукциона.

Еще 3 фото
Технологический институт
Нежилое помещение в аренду для субъектов малого и среднего предпринимательства в Санкт-Петербурге Санкт-Петербург г, Верейская ул, дом 29, литер А Показать на карте

Площадь: 93.3м2

Район: Адмиралтейский

Дата торгов: 29.10.20

Начальная ставка: 680 633,16 руб.

Еще 5 фото
Технологический институт
Объект нежилого фонда (помещение) Санкт-Петербург г, Подольская ул, дом 41, литер Б Показать на карте

Площадь: 26.2м2

Район: Адмиралтейский

Дата торгов: 28.04.26

Начальная цена: 5 197 200 руб.

Еще 10 фото
Балтийская
Нежилое помещение в аренду для субъектов малого и среднего предпринимательства в Санкт-Петербурге Санкт-Петербург г, Садовая ул, дом 105, литер А Показать на карте

Площадь: 16м2

Район: Адмиралтейский

Еще 2 фото
Балтийская
Объект нежилого фонда (помещение) Санкт-Петербург г, Шкапина ул, дом 22, литер А Показать на карте

Площадь: 143.2м2

Район: Адмиралтейский

Дата торгов: 30.01.20

Начальная цена: 2 448 000 руб.

Прямоугольник 2 копия Прямоугольник 2 копия 2 chat chat Прямоугольник, скругл. углы 1 копия 6 profile