Вход
Восстановление пароля
Введите код из SMS
Введите новый пароль
8 (812) 777-27-27

Добавить лот

Чтобы реализовать свою недвижимость на площадке Фонда Имущества, отправьте нам информацию об объекте:

{{smsCtrl.telMsg}}
{{smsCtrl.codeMsg}}
Отправить еще раз
Добавляя лот, вы соглашаетесь с Договором оферты

Авторизация
Авторизируйтесь для добавления объекта и участия в рейтинге

Зарегистрироваться

Оцените по достоинству личный кабинет на сайте Фонда Имущества
Вы можете зарегистрироваться
чтобы воспользоваться новым функционалом
О сайте

Название: сетевое издание «фондимущества.рф»

Учредитель: АО «Фонд Имущества Санкт-Петербурга»

Главный редактор: Голыгина А.В.

Электронная почта: pochta@property-fund.ru

Телефон: +7 (812) 426-11-11

Свидетельство о регистрации: ЭЛ № ФС 77 - 73029

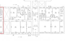
Номер лота 4315
Объект нежилого фонда (помещение) Извещение о проведении торгов
16 сентября
2025
11:00
вторник

Адрес: Санкт-Петербург г, Большой П.С. пр-кт, дом 2/1, литер А

Район: Петроградский    Спортивная

Форма проведения:
Аукцион с открытой формой подачи предложений

Место проведения торгов:
Электронная площадка АО «Российский аукционный дом» (раздел «Приватизация») - www.lot-online.ru

Организатор торгов:
АО «Российский аукционный дом»

Сведения о процедуре
Начальная цена 13 300 000 руб.
Размер задатка 1 330 000 руб.
Шаг аукциона 665 000 руб.
Цена продажи 16 625 000 руб.
Определение участников торгов 12.09.2025 15:00
Дата публикации 11.08.25
Тип сделки Продажа
Тип торгов Электронные
Дата начала приема заявок 11.08.25, 15:00
Дата окончания приема заявок 08.09.25, 23:00
Срок поступления задатка 09.09.25
Дата торгов 16.09.25
Сведения об объекте
Адрес Санкт-Петербург г, Большой П.С. пр-кт, дом 2/1, литер А
Помещение 9-Н
Кадастровый номер 78:07:0003095:3441
Функциональное назначение Универсальное
Площадь кв. м 86,8 м2
Этаж расположения 1
Тип входа общий со двора
Элементы благоустройства Есть
Еще 4 фото
Чкаловская
Объект нежилого фонда (помещение) Санкт-Петербург г, Профессора Попова ул, дом 44, литер Б Показать на карте

Площадь: 9.6м2

Район: Петроградский

Дата торгов: 07.04.26

Начальная цена: 1 927 600 руб.

Еще 3 фото
Чкаловская
Объект нежилого фонда (помещение) Санкт-Петербург г, Профессора Попова ул, дом 44, литер Б Показать на карте

Площадь: 12.4м2

Район: Петроградский

Дата торгов: 07.04.26

Начальная цена: 2 427 800 руб.

Еще 8 фото
Чкаловская
Объект нежилого фонда (помещение) Санкт-Петербург г, Большая Разночинная ул, дом 3, литер А Показать на карте

Площадь: 27.3м2

Район: Петроградский

Еще 5 фото
Чкаловская
Объект нежилого фонда (помещение) Санкт-Петербург г, Петровский пер, дом 3, литер А Показать на карте

Площадь: 26.1м2

Район: Петроградский

Дата торгов: 08.04.26

Начальная цена: 4 916 600 руб.

Прямоугольник 2 копия Прямоугольник 2 копия 2 chat chat Прямоугольник, скругл. углы 1 копия 6 profile