Вход
Восстановление пароля
Введите код из SMS
Введите новый пароль
8 (812) 777-27-27

Добавить лот

Чтобы реализовать свою недвижимость на площадке Фонда Имущества, отправьте нам информацию об объекте:

{{smsCtrl.telMsg}}
{{smsCtrl.codeMsg}}
Отправить еще раз
Добавляя лот, вы соглашаетесь с Договором оферты

Авторизация
Авторизируйтесь для добавления объекта и участия в рейтинге

Зарегистрироваться

Оцените по достоинству личный кабинет на сайте Фонда Имущества
Вы можете зарегистрироваться
чтобы воспользоваться новым функционалом
О сайте

Название: сетевое издание «фондимущества.рф»

Учредитель: АО «Фонд Имущества Санкт-Петербурга»

Главный редактор: Голыгина А.В.

Электронная почта: pochta@property-fund.ru

Телефон: +7 (812) 426-11-11

Свидетельство о регистрации: ЭЛ № ФС 77 - 73029

Номер лота 4288
Объект нежилого фонда (помещение) Извещение о проведении торгов
29 апреля
2025
11:00
вторник

Адрес: Санкт-Петербург г, Конная ул, дом 20/6, литер А

Район: Центральный    Площадь Александра Невского

Форма проведения:
Аукцион с открытой формой подачи предложений

Место проведения торгов:
Электронная площадка АО «Российский аукционный дом» (раздел «Приватизация») - www.lot-online.ru

Организатор торгов:
АО «Российский аукционный дом»

Сведения о процедуре
Начальная цена 650 000 руб.
Размер задатка 65 000 руб.
Шаг аукциона 30 000 руб.
Определение участников торгов 25.04.2025 15:00
Дата публикации 26.03.25
Тип сделки Продажа
Тип торгов Электронные
Дата начала приема заявок 26.03.25, 10:00
Дата окончания приема заявок 21.04.25, 23:00
Срок поступления задатка 22.04.25
Дата торгов 29.04.25
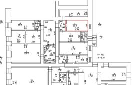
Сведения об объекте
Адрес Санкт-Петербург г, Конная ул, дом 20/6, литер А
Помещение 2-Н
Кадастровый номер 78:31:0001484:2645
Функциональное назначение Универсальное
Площадь кв. м 8,4 м2
Этаж расположения 1
Тип входа Общий с улицы
Элементы благоустройства Есть
Еще 4 фото
Площадь Восстания
Объект нежилого фонда (помещение) Санкт-Петербург г, 6-я Советская ул, дом 5, литер А Показать на карте

Площадь: 139.4м2

Район: Центральный

Дата торгов: 09.06.26

Начальная цена: 6 000 000 руб.

Еще 9 фото
Чернышевская
Объект нежилого фонда (помещение) Санкт-Петербург г, Кирочная ул, дом 37, литер А Показать на карте

Площадь: 29.8м2

Район: Центральный

Дата торгов: 09.06.26

Начальная цена: 1 891 000 руб.

Еще 6 фото
Площадь Александра Невского
Объект нежилого фонда (помещение) Санкт-Петербург г, Бакунина пр-кт, дом 19-25, литер А Показать на карте

Площадь: 394.3м2

Район: Центральный

Дата торгов: 14.05.26

Начальная цена: 38 400 000 руб.

Еще 7 фото
Чернышевская
Объект нежилого фонда (помещение) Санкт-Петербург г, Чайковского ул, дом 43, литер А Показать на карте

Площадь: 34.1м2

Район: Центральный

Начальная цена: 2 300 000 руб.

Прямоугольник 2 копия Прямоугольник 2 копия 2 chat chat Прямоугольник, скругл. углы 1 копия 6 profile