Вход
Восстановление пароля
Введите код из SMS
Введите новый пароль
8 (812) 777-27-27

Добавить лот

Чтобы реализовать свою недвижимость на площадке Фонда Имущества, отправьте нам информацию об объекте:

{{smsCtrl.telMsg}}
{{smsCtrl.codeMsg}}
Отправить еще раз
Добавляя лот, вы соглашаетесь с Договором оферты

Авторизация
Авторизируйтесь для добавления объекта и участия в рейтинге

Зарегистрироваться

Оцените по достоинству личный кабинет на сайте Фонда Имущества
Вы можете зарегистрироваться
чтобы воспользоваться новым функционалом
О сайте

Название: сетевое издание «фондимущества.рф»

Учредитель: АО «Фонд Имущества Санкт-Петербурга»

Главный редактор: Голыгина А.В.

Электронная почта: pochta@property-fund.ru

Телефон: +7 (812) 426-11-11

Свидетельство о регистрации: ЭЛ № ФС 77 - 73029

Номер лота 10917
Земельный участок в собственность под ИЖС Извещение о проведении торгов
20 марта
2024
11:00
среда

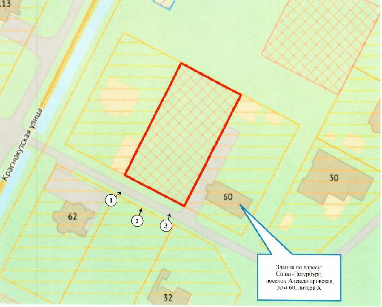
Адрес: ЗУ по адресу: Санкт-Петербург г, Александровская п, Краснокутская ул, участок 24

Форма проведения:
Аукцион с открытой формой подачи предложений

Место проведения торгов:
utp.sberbank-ast.ru торговая секция «Приватизация, аренда и продажа прав»

Организатор торгов:
Комитет имущественных отношений Санкт-Петербурга в лице СПб ГКУ “Имущество Санкт-Петербурга”

Сведения о процедуре
Начальная цена 5 522 057,88 руб.
Размер задатка 2 762 000 руб.
Шаг аукциона 165 600 руб.
Цена продажи 7 509 257,88 руб.
Определение участников торгов 19.03.2024 17:00
Дата публикации 02.08.23
Тип сделки Продажа
Дата начала приема заявок 03.08.23, 00:00
Дата окончания приема заявок 18.03.24, 00:00
Срок поступления задатка 19.03.24
Дата торгов 20.03.24
Сведения об объекте
Кадастровый номер
Адрес ЗУ по адресу: Санкт-Петербург г, Александровская п, Краснокутская ул, участок 24
Площадь кв. м 1 200 м2
Основание для проведения торгов

№1706-рз от 04.07.2023

Примечания

Продавец: Комитет имущественных отношений Санкт-Петербурга в лице СПб ГКУ “Имущество Санкт-Петербурга”
Обременения: См.информационное сообщение

Еще 2 фото
Земельный участок в собственность под ИЖС ЗУ по адресу: Санкт-Петербург г, Красное Село г, Пудостская ул, участок 34 Показать на карте

Площадь: 1200м2

Начальная цена: 4 298 095,80 руб.

Еще 1 фото
Земельный участок в аренду на инвестиционных условиях ЗУ по адресу: Санкт-Петербург г, Рыбацкое, Гудиловская, участок 4 Показать на карте

Площадь: 5400м2

Начальная ставка: 3 300 000 руб.

Еще 2 фото
Земельный участок в аренду на инвестиционных условиях ЗУ по адресу: Санкт-Петербург г, Металлострой п, промзона "Металлострой", дорога на Металлострой, участок 1, (северо-западнее дома 6, литера А дороги на Металлострой) Показать на карте

Площадь: 3707м2

Начальная ставка: 4 600 000 руб.

Земельный участок в собственность под ИЖС ЗУ по адресу: Санкт-Петербург г, Тярлево п, Совхозная ул, участок 1 Показать на карте

Площадь: 1281м2

Начальная цена: 6 511 273,30 руб.

Прямоугольник 2 копия Прямоугольник 2 копия 2 chat chat Прямоугольник, скругл. углы 1 копия 6 profile