Вход
Восстановление пароля
Введите код из SMS
Введите новый пароль
8 (812) 777-27-27

Добавить лот

Чтобы реализовать свою недвижимость на площадке Фонда Имущества, отправьте нам информацию об объекте:

{{smsCtrl.telMsg}}
{{smsCtrl.codeMsg}}
Отправить еще раз
Добавляя лот, вы соглашаетесь с Договором оферты

Авторизация
Авторизируйтесь для добавления объекта и участия в рейтинге

Зарегистрироваться

Оцените по достоинству личный кабинет на сайте Фонда Имущества
Вы можете зарегистрироваться
чтобы воспользоваться новым функционалом
О сайте

Название: сетевое издание «фондимущества.рф»

Учредитель: АО «Фонд Имущества Санкт-Петербурга»

Главный редактор: Голыгина А.В.

Электронная почта: pochta@property-fund.ru

Телефон: +7 (812) 426-11-11

Свидетельство о регистрации: ЭЛ № ФС 77 - 73029

Номер лота 10493
Земельный участок в аренду под ИЖС Извещение о проведении торгов
19 августа
2021
14:00
четверг

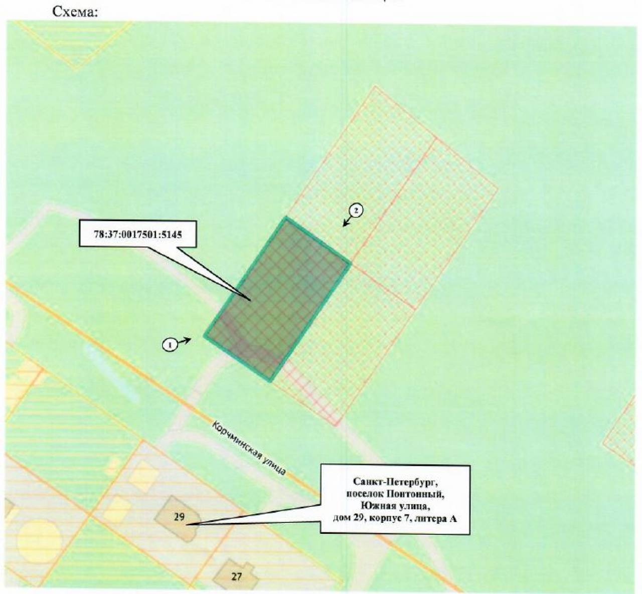
Адрес: ЗУ по адресу: Санкт-Петербург г, Понтонный п, Корчминская ул, участок 2

Район: Колпинский   

Форма проведения:
Аукцион с открытой формой подачи предложений

Место проведения торгов:
Санкт-Петербург, ул. Новгородская, д. 20, литера А, зал № 4

Организатор торгов:
Комитет имущественных отношений Санкт-Петербурга в лице СПб ГКУ “Имущество Санкт-Петербурга”

Сведения о процедуре
Начальная цена 457 990,81 руб.
Размер задатка 91 598,16 руб.
Шаг аукциона 13 739,72 руб.
Цена продажи 3 041 058,17 руб.
Определение участников торгов 18.08.2021 14:00
Дата публикации 27.05.21
Тип сделки Аренда
Дата начала приема заявок 28.05.21, 10:00
Дата окончания приема заявок 16.08.21, 17:00
Срок поступления задатка 16.08.21
Дата торгов 19.08.21
Сведения об объекте
Кадастровый номер 78:37:0017501:5144
Адрес ЗУ по адресу: Санкт-Петербург г, Понтонный п, Корчминская ул, участок 2
Площадь кв. м 1 222 м2
Функциональное назначение

Для индивидуального жилищного строительства

Основание для проведения торгов

распоряжение КИО №1395-рз от 06.08.2020

Примечания

Продавец: Комитет имущественных отношений Санкт-Петербурга в лице СПб ГКУ “Имущество Санкт-Петербурга”
Земельный участок предоставляется в аренду для индивидуального жилищного строительства.
Начальная цена - размер ежегодной арендной платы за Земельный участок.

Еще 2 фото
Земельный участок в собственность под ИЖС ЗУ по адресу: Санкт-Петербург г, Понтонный п, Корчминская ул, участок 39 Показать на карте

Площадь: 1239м2

Район: Колпинский

Начальная цена: 5 183 372,98 руб.

Еще 2 фото
Земельный участок в собственность под ИЖС ЗУ по адресу: Санкт-Петербург г, Понтонный п, Шлиссельбургское ш, участок 101, (местоположение: Российская Федерация, Санкт-Петербург, внутригородское муниципальное образование Санкт-Петербурга поселок Понтонный, Шлиссельбургское шоссе, участок 101, (ОЗУ Показать на карте

Площадь: 1463м2

Район: Колпинский

Начальная цена: 5 954 562,74 руб.

Рыбацкое
Земельный участок в аренду под ИЖС ЗУ по адресу: Санкт-Петербург г, Понтонный п, Корчминская ул, участок 4 Показать на карте

Площадь: 1210м2

Район: Колпинский

Еще 1 фото
Рыбацкое
Земельный участок в собственность под ИЖС ЗУ по адресу: Санкт-Петербург г, Понтонный п, Корчминская ул, участок 3 Показать на карте

Площадь: 1275м2

Район: Колпинский

Прямоугольник 2 копия Прямоугольник 2 копия 2 chat chat Прямоугольник, скругл. углы 1 копия 6 profile