Вход
Восстановление пароля
Введите код из SMS
Введите новый пароль
8 (812) 777-27-27

Добавить лот

Чтобы реализовать свою недвижимость на площадке Фонда Имущества, отправьте нам информацию об объекте:

{{smsCtrl.telMsg}}
{{smsCtrl.codeMsg}}
Отправить еще раз
Добавляя лот, вы соглашаетесь с Договором оферты

Авторизация
Авторизируйтесь для добавления объекта и участия в рейтинге

Зарегистрироваться

Оцените по достоинству личный кабинет на сайте Фонда Имущества
Вы можете зарегистрироваться
чтобы воспользоваться новым функционалом
О сайте

Название: сетевое издание «фондимущества.рф»

Учредитель: АО «Фонд Имущества Санкт-Петербурга»

Главный редактор: Голыгина А.В.

Электронная почта: pochta@property-fund.ru

Телефон: +7 (812) 426-11-11

Свидетельство о регистрации: ЭЛ № ФС 77 - 73029

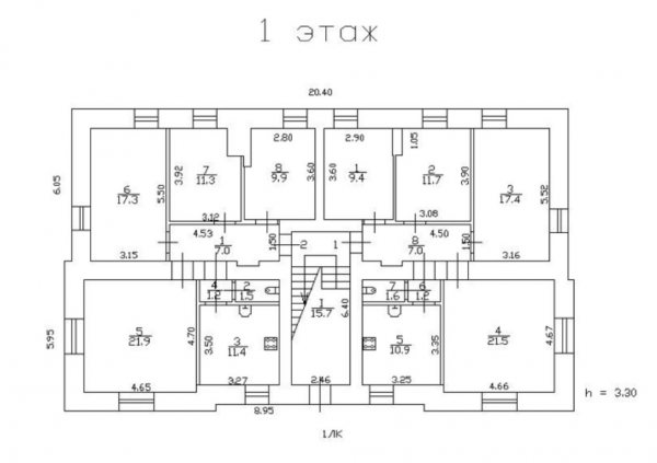
Номер лота 4778
Здания с земельным участком в собственность Извещение о проведении торгов
18 сентября
2025
11:00
четверг

Адрес: ЗУ по адресу: Город Санкт-Петербург, г Красное Село, ул Лермонтова, д. 16а

Район: Красносельский   

Кол-во объектов: 2

Форма проведения:
Аукцион с открытой формой подачи предложений

Место проведения торгов:
Электронная площадка АО «Российский аукционный дом» (раздел «Приватизация») - www.lot-online.ru

Организатор торгов:
АО «Российский аукционный дом»

Сведения о процедуре
Начальная цена 12 500 000 руб.
Размер задатка 1 250 000 руб.
Шаг аукциона 625 000 руб.
Цена продажи 12 500 000 руб.
Определение участников торгов 16.09.2025 15:00
Дата публикации 14.08.25
Тип сделки Продажа
Тип торгов Электронные
Дата начала приема заявок 14.08.25, 10:00
Дата окончания приема заявок 10.09.25, 23:00
Срок поступления задатка 11.09.25
Дата торгов 18.09.25

Состав лота:

Земельный участок
Реестр № 12164
Кадастровый номер 78:40:0009017:3776
Площадь кв. м 550 м2
Здание
Реестр № 12165
Кадастровый номер 78:40:0019284:1015
Площадь кв. м 327,9 м2
Этажность 2
Cостояние Неудовлетворительное

Функциональное назначение:
Универсальное

Еще 3 фото
Площадь Александра Невского
Объект нежилого фонда (здание) Санкт-Петербург г, Синопская наб, дом 38, литер Б Показать на карте

Площадь: 129.7м2

Район: Центральный

Дата торгов: 26.03.26

Начальная цена: 20 008 000 руб.

Еще 6 фото
Балтийская
Здание с земельным участком в собственность Санкт-Петербург г, Курляндская ул, дом 4, литер О Показать на карте

Площадь здания/участка: 42м2/66м2

Район: Адмиралтейский

Дата торгов: 19.08.25

Начальная цена: 5 680 000 руб.

Еще 5 фото
Здания с земельным участком в собственность Санкт-Петербург г, г. Петергоф, Прогонная ул, дом 2, литер Б Показать на карте

Площадь здания/участка: 475.3м2/3449м2

Район: Петродворцовый

Начальная цена: 16 180 000 руб.

Еще 2 фото
Здание с земельным участком в собственность Санкт-Петербург г, Зеленогорск г, Приморское ш, дом 563, литер А Показать на карте

Площадь здания/участка: 140.9м2/1567м2

Район: Курортный

Дата торгов: 08.04.26

Начальная цена: 19 650 001,22 руб.

Прямоугольник 2 копия Прямоугольник 2 копия 2 chat chat Прямоугольник, скругл. углы 1 копия 6 profile